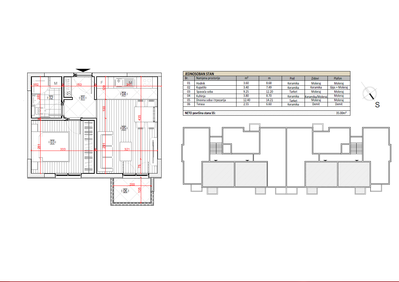
U ponudi imamo jednosobne stanove od 35m2 kojih imamo na drugom i trecem spratu. Zgrada se radi od jako kvalitetnih materijala sto u gruboj fazi tako i u zavrsnoj fazi. Svaki stan posjeduje svoje parking mjesto koje je ukljuceno u cijenu. Rok zavrsetka gradnje je Novembar 2020 godine. Kupovina stanova je direkotno od investitora i moze se kupiti na 2 rate i to: 50% prilikom potpisivanja ugovora i 50% prilikom uknjizbe stana.

 

Cijena: 40 250 eura.

Property Features

  • Jednosoban